Lea Furbach
Vita
Projects
Links
Contact
Visiting Point
vis
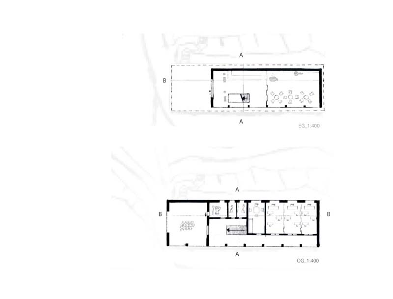
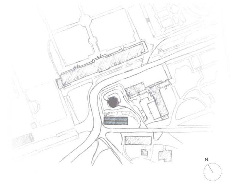
Ende des zweiten Weltkrieges geriet die Mühle von Sanssouci mitsamt ihrer Umgebung in Brand. Während sie rekonstruiert wurde blieb das Grundstück, auf dem sich zuvor das Schweizerhaus befand, frei. Die Neubebauung sieht ein Besucherzentrum für Touristen vor, in dem Stadtbesichtigungen, Aufenthalts- sowie Versammlungsmöglichkeiten angeboten werden. Der vorliegende Entwurf greift das historische Schweizerhaus auf und interpretiert dieses neu. Grundfläche und Kubatur wurden beibehalten, während die Fassade neugestaltet wurde. Der weiße Sichtbeton bildet einen Kontrast zur historischen Mühle und macht so hervorragend auf das Ge- bäude aufmerksam. Die verglaste Fassade zur Straße hin und der Eingangsbereich lassen eine Südwestausrichtung entstehen und bilden so eine Blickbeziehung zum Schloss Sanssouci. Durch den überdachten Außenbereich unmittelbar vor dem Eingang entsteht ein einladender Wartebereich im Freien. Darüber hinaus bietet der Eingangsbereich weitere, großzügige Aufenthaltsmöglichkeiten. Im dahinterliegenden Lounge Bereich wird vom Besucherbetreuer oder durch eine Beamervorstellung über die folgenden Aktivitäten informiert. Eine großzügige Treppe führt in das erste Obergeschoss. Wo sich im historischen Schweizerhaus ein großzügiger Balkon befand, ist nun ein Veranstaltungssaal auf- zufinden. Neben Lesungen und Feiern besteht hier die Möglichkeit gesetzte Essen zu geben, da in direkter Verbindung ein Cateringraum angrenzt. Durch die großzügige Befensterung unterstreicht ein Ausblick zum Schloss Sanssouci den angenehmen Cha- rakter des Raumes.
casa
casa
casa
BACK to DESIGNs